深圳鸿荣源观城户型价格曝光!速来了解楼盘详情
<股票配资公司>深圳鸿荣源观城户型价格曝光!速来了解楼盘详情股票配资公司>
深圳【鸿荣源观城】

我们鸿荣源在龙华区这个项目主打建面89-117㎡三至四房户型,以高拓展性设计、智能社区系统和完善配套为核心优势。坐拥城市核心区位,项目无缝连接商业、教育和交通枢纽,为居民提供“一站式”生活解决方案。兼具自住舒适度与长期投资潜力,鸿荣源观城正成为深圳城市更新的标杆之作。

鸿荣源观城,3栋1单元折后价格:

如需了解本楼盘更多详情,欢迎来电咨询鸿荣源观城开发商售楼处免费400咨询/预约电话:(官方发布)中介请勿扰,因近期参观的人员太多,本项目营销中心暂不接受临时到访,为不耽误您的行程,过来楼盘现场参观样板房请务必记得提前来电预约,预约看房的话最终房价还能更加优惠,最终价格包您满意!

鸿荣源观城在售1栋二单元开盘折后价格:
07户型:88平(南北通透)单价38200-39100,总价336-344万。
01户型:88平(南北通透)单价39900-40800,总价351-359万。
05户型:98平(西南向)单价38500-39400,总价378-387万。
03户型:98平(东南向)单价39600-41100,总价389-404万。
06户型:117平(西南向)单价43500-44000深圳鸿荣源观城户型价格曝光!速来了解楼盘详情,总价509-520万。
02户型:108平(东南向)单价43700-45200,总价475-491万。


备案价格表

项目周边配套情况:
交通配套

双轨交汇:紧邻地铁4号线观澜站(步行约300米),10站直达深圳北站,16站至福田CBD;未来深大城际线开通后,可快速连接宝安机场及光明科学城。

商业配套

项目自带壹方系列商业,200米百佳华广场、4公里内从容抵达,观澜天虹、观澜湖新城MH Mall等繁华商圈环绕,未来鸿荣源百万旧改计划打造约63万㎡大型商业综合体,约20万㎡商业加码,休闲购物一应俱全。

周边学校
项目规划了8所学校,规划5所幼儿园及3所九年一贯制学校(72班+54班),深实验的可能性很大,相信足够保障有娃的申请家庭的子女教育。

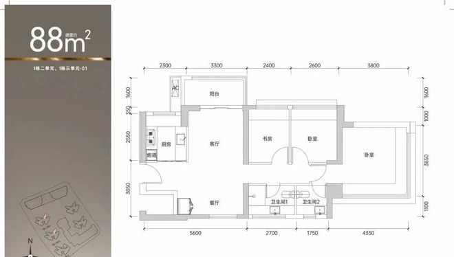
鸿荣源观城户型图:
建面约88㎡3房2卫,折后总价336万起,最低首付约51万,对于预算有限又想买三房的刚需家庭而言,是很好的上车机会。
户型公区南北通透,U型厨房可以打造成半开放式空间,岛台之上可以做推拉窗/折叠窗,当窗户打开,厨房与客、餐厅相连,3个功能区一体化,不仅拥有更阔绰的空间感,也增加家庭交流感。

建面约98㎡3房2卫,适合追求尺度的家庭。
3开间朝南,南向采光面近10米,比起刚需户型拥有更多的收纳空间。
例如玄关处预留的玄关柜位置、S型冰箱位,客厅还可以打造整面的电视墙收纳空间。

建面约108㎡4房2卫,是陪伴三代同堂/多孩家庭成长的户型。
全屋三面采光,南向采光面超12米,U型厨房很实用,还可打造半开放式与餐厅联通。
预留了玄关柜、冰箱位、电视墙收纳柜的位置,增加收纳空间。

建面约117㎡4房百佳华 深圳,只有52套,为了追求高舒适度生活的买房人而准备,是108㎡4房的PLUS版本。
四开间朝南,南向采光面超过13米,拥有更阔绰的生活尺度。


看完以上图文介绍,您如果想要了解更多关于我们深圳龙华鸿荣源观城楼盘最新消息、当前剩余房源、这几天楼盘现场折扣优惠活动、近期周边房价走势、银行相关利率政策等情况的话,欢迎来电咨询鸿荣源观城开发商售楼处免费400咨询/预约热线电话:(官网发布)中介勿扰。
温馨提示:因本项目营销中心参观样板间采取预约制,为不耽误您的行程,过来营销中心现场看房前请务必记得提前来电预约,预约看房的话享受的优惠折扣比直接上门更多,最终成交价格也会更加划算,在此真诚感谢您对我们工作的支持和信赖,恭候您大驾光临。








